D'après un article anonyme pour L'Architecture française. Janvier 1940 [1]

Terrain scolaire et baignade de l'Île des Ibis

... Dans le même ordre d'idées et du même architecte [2], voici le projet du Centre scolaire du Vésinet.
Peu d'endroits se prêtent, comme le Vésinet, à une construction d'esprit sportif. C'est là, en effet, l'un des coins de nature les plus agréables qui se trouvent dans la banlieue parisienne. Le principal mérite de l'architecte est d'avoir su respecter l'intégrité du site. Les installations prévues, bien que se conformant, au point de vue orientation, aux directives du Commissariat aux Sports, ont été disposées de manière à ne nécessiter la destruction d'aucune végétation environnante.
Dans ce cadre intact, la construction, de lignes simples, sera parfaitement mise en valeur.

Nous donnons [ci-dessous] un plan de l'état actuel du terrain montrant son heureuse disposition au milieu d'un parc très agréable, et l'implantation des arbres et des tennis existants. Les installations sportives prévues dans ce cadre sont: un terrain d'évolution comportant une piste de 150m, une piste de vitesse de 70m, un plateau d'évolution de 20×35, deux sautoirs en hauteur, deux sautoirs en longueur, un portique, barres de suspension, poutres d'équilibre, un terrain de basket-ball, un bassin scolaire de natation, un bassin sportif (ces deux éléments étant en plein air), un bâtiment vestiaires avec douches pour les scolaires, ainsi que trente-deux cabines individuelles à change rapide avec vestiaire et douches pour la population.

Etat de l'île des Ibis en 1940 (avant l'occupation par l'armée allemande)

L'Architecture française. Janvier 1940.

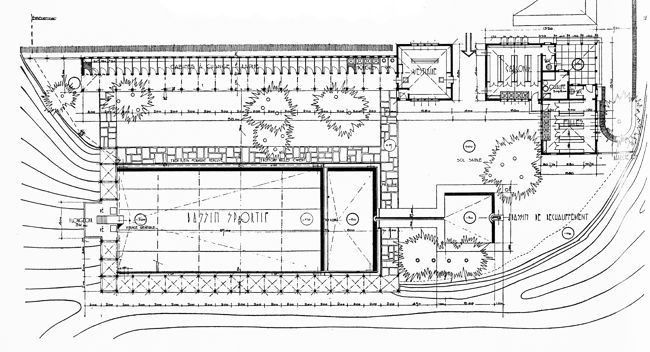
Plan d'ensemble proposé

Projet d'implantation d'équipements sportifs (terrains, vestiaires-douches, bassin, ...)

Les bassins sont disposés en bordure du lac des Ibis, d’une part, et, de l’autre, sont encadrés par les bâtiments de vestiaires-douches qui se trouvent de ce fait orientés à l’est.

A l’ouest de ceux-ci, et en communication avec eux, les terrains d’entraînement.

 

Plan du rez-de-chaussée, des bassins et des bâtiments de vestiaires.

Il est important de noter le nombre d’habitants que groupe la commune du Vésinet : 11.700, et celui des écoles : 1 142. La commune ne possédant qu’un stade communal de dimensions trop réduites et les écoles de la région se trouvant à environ 500 ou 800 mètres de l’île des Ibis, ces chiffres justifient donc pleinement l’importance de ce programme et le choix du terrain en un point de la commune qui est non seulement un endroit champêtre, mais aussi le centre de gravité des différentes écoles publiques. Sa superficie est d’environ 10.000m². Le terrain d’évolution et de basket-ball ont été orientés nord-sud ; le bassin de natation également, avec façade d’exposition des cabines à l’est, ce qui permet d’isoler ce bassin du terrain proprement dit, tout en laissant la faculté aux enfants d’utiliser les vestiaires à double fin, c’est-à-dire aussi bien pour piscine que pour les terrains d’entraînement.

Les bâtiments se composent : d’un vestiaire pour une centaine d’enfants avec huit douches et deux W.-C., ces locaux étant répartis en deux corps de bâtiments, l’un pour les garçons, l’autre pour les filles, réunis par un hall couvert donnant accès à la chaufferie et aux réserves, puis de trente-deux cabines à change rapide, avec vestiaire, quatre douches et deux W.-C. destinés à la population du Vésinet. La baignade se compose d'un bassin scolaire de 12,50m x 6m et d’un bassin sportif de 25m x 12,50m avec plongeoirs. L’eau est fournie par la Compagnie Lyonnaise des Eaux, à raison de 280 mètres cubes d’eau par 24 heures, ce qui permet le renouvellement du bassin en 56 heures par écoulement continu. Cette eau est rendue parfaitement pure par l’installation d’une station d’épuration. Cependant, le bassin sera vidé complètement à périodes régulières pour permettre le nettoyage à fond. Cette évacuation se fera dans les égouts de la ville.
Le sol est sain et sablonneux. Un drain sommaire a été prévu, l’exiguïté du terrain par rapport au nombre des enfants ayant à le fréquenter exigeant un sol parfait. Les vestiaires scolaires ont été prévus également de façon pouvoir contenir quatre-vingt-seize enfants, ce qui permet de faire défiler la population scolaire en douze séances renouvelées deux fois dans la semaine. Ainsi s’établit l’usage rythmé de ces locaux.

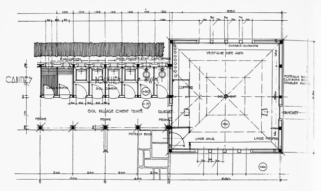
Plan de détail du bâtiment des vestiaires destinés au public.

A gauche, les caillebotis des cabines à change rapide, les quatre douches et les W.-C. Le vestiaire où se trouvent le guichet du surveillant et la distribution du linge propre.

 

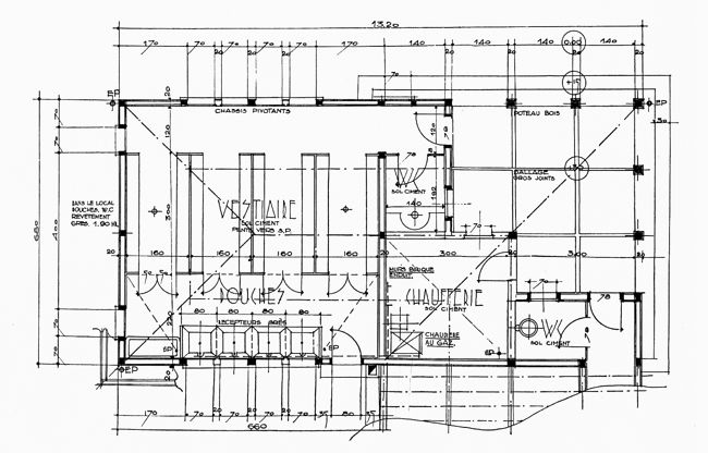
Plan de détail du bâtiment des vestiaires destinés aux enfants.

Là où il n’y a pas de cabines rapide, les vestiaires sont communs et donnent directement accès aux douches.

Deux salles de déshabillage sont prévues, une pour les garçons, l’autre pour les filles (elle n’est pas figurée sur ce plan). Une chaufferie complète l’ensemble.

 

Nous avons donné des plans détaillés de ces bâtiments afin que le lecteur y trouve tous renseignements utiles dans ses études. En effet, ces bâtiments, d’une construction simple, prévue en bois sur soubassement de moellons sont des éléments types d’ensembles sportifs comme il va en être créé un peu partout en France. [3]

****

    Notes et sources :

    [1] Revue d'architecture, urbanisme, architecture paysagiste, travaux publics, études techniques, archéologie, arts appliqués, peinture, sculpture, enseignement, jurisprudence, éditée par la société française d'Architecture (Paris). Cet article est tiré du premier numéro (janvier 1940) de la revue qui parut jusqu'en 1975. De ce premier numéro, il ne reste que quelques pages (dont celles-ci) déposées aux archives nationales par la veuve du directeur de la publication, Paul-Marcel Durand-Souffland..

    [2] Poulain, Roger (1903-2000) Architecte DPLG est moins connu pour ses réalisations que par ses ouvrages: Hôpitaux et sanatoria (2 volumes), 1929 et 1931 ; Bâtiments civils industriels et commerciaux, 1931 ; Salles de spectacles et d'auditions, 1933 ; Écoles (2 volumes), 1931 et 1933.

    [3] Ce projet très élaboré, commandé par la municipalité (le maire Émile Thiébaut ?) ne sera jamais proposé et sera « enterré » par la guerre. Le plan d'ensemble (fig. 1) reprend les cotes d'un plan dressé en 1927 (10 décembre) par l'architecte-voyer R. Vigneron. Tenait-il compte du classement du Site des Ibis au titre des Sites pittoresques (1934) et du très strict Plan d'aménagement déclaré d'utilité publique en 1937 ?


Société d'Histoire du Vésinet, 2024 • www.histoire-vesinet.org